Варочная поверхность Graude EK 45.0 S

Написать отзыв
Узнать цену
Задать вопрос

Описание

Основные характеристики

Вид: Hi-Light

Способ подключения: электрический

Материал панели конфорок: стеклокерамика

Цвет: черный

Переключатели: сенсорные

Особенности дизайна: без рамки

Конфорки

Общее количество конфорок: 3

Ближняя слева, кВт: 1.8

Дальняя слева, кВт: 1.2

Ближняя справа, кВт: 1.8

Ближняя слева, см: 20

Дальняя слева, см: 16.5

Ближняя справа, см: 20

Комфорт и безопасность

Управление: электронное

Тип переключателей: сенсорные

Таймер: Есть

Количество ступеней нагрева: 9

Автоматическое отключение: Есть

Блокировка панели управления: Есть

Индикатор остаточного тепла: да

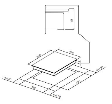
Технические характеристики

Высота, см: 5.1

Ширина, см: 45

Глубина, см: 52

Размеры ниши для встраивания (Ш х Г), см: 43 х 49.5

Потребляемая мощность, кВт: 4.8

Напряжение, В: 220-240

Частота, Гц: 50

Отзывы

Отзывы не найдены